浄土寺上南田町 中古戸建【2023年築】
京都中央信用金庫銀閣寺支店が歩いて255mのところにあります。中古の戸建て物件は、経済的なメリットが大きいのが特徴です。2023年1月築の物件となっており、設備も充実しています。ニーズの高い築5年以内の物件です。ハウス・スタート京都左京店へお問い合わせいただければ、京阪鴨東線出町柳近くにある不動産の詳細情報をお教えいたします。
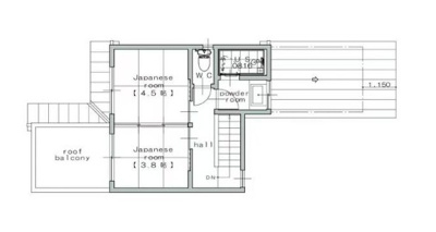
物件情報
周辺施設
浄土寺上南田町 中古戸建【2023年築】 の物件概要
【中古一戸建】| 所在地 | 京都府京都市左京区浄土寺上南田町 | ||
|---|---|---|---|
| 交通 | |||
| 価格 | 6,980万円 | 築年月(築年数) | 2023年 1月 ( 築2年 ) |
| 建物面積/坪数 | 63.34㎡/19.16坪 | 土地面積/坪数 | 84.68㎡/25.61坪 |
| 種別/構造 | 中古一戸建 / 木造 | 地目 | 宅地 |
| 備考 | 新着情報:浄土寺上南田町 中古戸建【2023年築】の空室情報ならコチラ。京都中央信用金庫銀閣寺支店が歩いて255mのところにあります。こちらの中古戸建て物件は、子育ての環境としてもうってつけです。令和5年1月築の物件となっており、設備も充実しています。京都市左京区の京阪鴨東線出町柳付近にある一戸建て探しで、何かお困りの事がございましたら、当社に何なりとお申し付け下さい。0120-730-830までご連絡をお待ちしております。 | ||
| 取扱会社 |
|
||
※地図上に表示される物件の位置は付近住所に所在することを表すものであり、実際の物件所在地とは異なる場合がございます。
浄土寺上南田町 中古戸建【2023年築】の販売物件情報








